Cualquier área

125.000€- local comercial Cruce de Sardina APTO RIC.

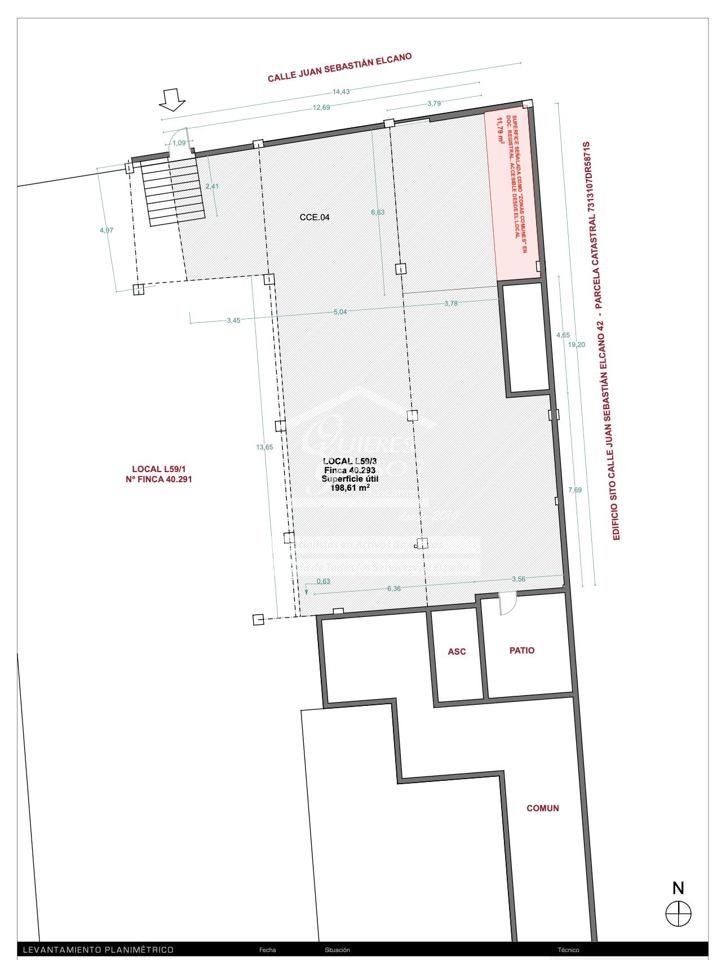
Calle Juan Sebastián Elcano, Vecindario, Las Palmas Ver mapa
Local
192m2
2 espacios
2 bañ.
Ref: C-1377

Descripción del inmueble

Amplio local comercial APTO para al RIC en pleno Cruce de Sardina ideal para que desarrolles cualquier actividad que estabas soñando .

Se puede contemplar el cambio de uso ya que cuenta con un patio trasero que permite la ventilación cruzada.

Tiene su entrada a través de unas escaleras comunitarias. No esperes más, podemos hablar del precio .

Unete a nuestro canal de what app y estarás informado de todas nuestras novedades.

https://whatsapp.com/channel/0029VbAk6ddEawdignUKMu1Q

No cobramos comisiones extras por la gestión hipotecaria

El Precio del inmueble no incluye los impuestos generados por la compra, gastos de notaría , gestoría y registro.

La información del presente anuncio es meramente orientativa, no vinculante y susceptible de ser modificada.

Más inmuebles en www.quierespiso.es

Características inmueble

céntrico diáfano luminoso terraza
Superficie: 192 m2
Superficie útil: 190 m2
Precio venta / m2: 651,04 €

Certificación energética

Consumo energético: En trámite
Emisión CO2: En trámite
Energy certificate

Localización inmueble

Inmobiliaria Quierespiso

621053442

Adviser

Gabriela M Pasare

611087621

Contacto

Comparte este inmueble: